Хорошая цена
С мебелью
14 500 000 ₽
322 222 ₽/м²
Уютная 1к кв.большой площади в популярном ЖК Альбатрос ждет счастливого покупателя!
Общие характеристики
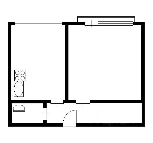
Площадь 45 кв.м.
кухня-гостиная 19 кв.м.
комната 16,5 кв.м.
прихожая с объемным встроенным шкафом 6 кв.м.
совмещенный санузел 3,8 кв.м.
Самый комфортный 3эт. Из окон и с французского балкона боковой вид на море.
В цокольном этаже накопительные баки, установлены водные фильтры.
Планировка и интерьер
- Удобная и продуманная планировка квартиры позволит разместиться 5 чел. в изолированной комнате (2-сп.кровать и раскладывающийся диванчик как минимум 2 взр + 1 реб) и кухне-гостиной (большой раскладывающийся диван возможно еще 2 взр).
- Просторная кухня-гостиная прекрасно подойдет для приготовления пищи (есть все необходимое) и приема гостей места достаточно.
- В прихожей встроенный шкаф с полочками можно использовать как гардеробную.
- Совмещенный санузел оборудован ванной, ремонт в светлых тонах.
- Благодаря большим окнам на восток квартира наполнена естественным светом. При этом сторона не подветренная и жары большой не будет.
Технические особенности
- Автономное газовое отопление котел BAXIи стабилизатор напряжения
- Теплые полы в кухне, санузле и прихожей, где на полу кафель. В комнате ламинат и батарея, есть батарея и в кухне.
- Телевизоры и кондиционеры обеспечивают комфорт в обоих помещениях.
- Роутер гарантия стабильного интернета.
Инфраструктура и расположение
- Непосредственно в ЖК Альбатрос в цокольном этаже присутствуют все магазины, рядом продажа овощей и фруктов, установлен терминал воды.
- Остановка общественного транспорта сразу за территорией ЖК.
- На территории ЖК много парковочных мест, есть и гаражи, детские и спортивные площадки.
- До моря 10 мин.спокойным шагом!
Юридические вопросы, готовность к сделке
- 1 собственник,
- обременений и перепланировок нет,
- прописанных нет
- возможна ипотека. Купить 1-комнатную квартиру 1-комнатных квартир в Альбатрос в Геленджике.










































































