Мы используем куки-файлы. Соглашение об использовании
С мебелью
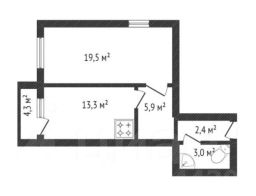
Общая площадь43 м²
Жилая площадь19,5 м²
Площадь кухни13,5 м²
Этаж14 из 16
Год постройки2015
Просторная однокомнатная квартира в очень развитом районе. в двух шагах школа и в 5ти минутах ходьбы детский сад. Все супер маркеты и небольшие магазины со всем необходимым в жилом комплексе. так же в шаговой доступности остановка общественного транспорта, множество транспорта до центра города и до моря на Тонкий мыс(море чистейшее). Один собственник, вся сумма в дкп, обременений нет. Подходит под семейную ипотеку. Возможен торг после осмотра квартиры, прт встрече.
Позвоните автору
Вам ответят на все вопросы

О квартире

Тип жилья

Вторичка

Общая площадь

43 м²

Жилая площадь

19,5 м²

Площадь кухни

13,5 м²

Высота потолков

2,5 м

Санузел

1 совмещенный

Балкон/лоджия

1 балкон

Вид из окон

На улицу

Ремонт

Косметический

Перепланировка

Не было

Продаётся с мебелью

Да

О доме

Год постройки

2015

Количество лифтов

1 пассажирский, 2 грузовых

Тип дома

Монолитный

Тип перекрытий

Железобетонные

Подъезды

3

Парковка

Наземная

Отопление

Центральное

Аварийность

Нет

Юридические особенности

Несовершеннолетние собственники

Нет

Материнский капитал при покупке

Не использовался

Спросите умного помощника
Получите экспертное мнение о жилье

Расположение

Ипотечный калькулятор
  • Базовая
  • Семейная
  • ИТ-ипотека
  • 20%
  • 30%
  • 40%
  • 50%
лет
  • 10 лет
  • 20 лет
  • 30 лет
Загружаем предложения от застройщика и банков
Помощь риелтора
Проверенный риелтор поможет купить или продать квартиру
Автор объявленияID 59989772
  • 5 лет 6 месяцев на Циане
  • 2 объявления
  • 9 300 000 ₽
    Цена за метр
    216 279 ₽/м²
    Условия сделки
    свободная продажа
    Ипотека
    возможна
    Автор объявленияID 59989772