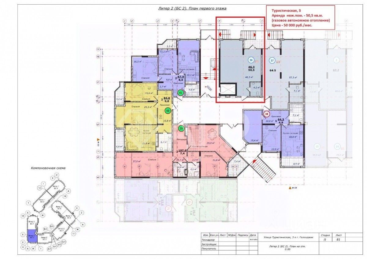
Продается торговая площадь, 50,5 м²

Площадь50,5 м²
Этаж1 из 9
ПомещениеСвободно
Отчёт о привлекательности объектаУзнайте, насколько помещение и район подходят для вашего бизнеса
Что входит в отчёт
  • Охват населения
  • Пешеходный трафик
  • Автомобильный трафик
  • Средний бюджет семьи по району
  • Арендные ставки рядом
  • Точки притяжения
  • Конкуренты в радиусе 1 км
  • Рекомендации по выбору места для бизнеса
Продам помещение свободного назначения, 50,5 кв.м. От собственника. Без комиссии. - Развитый район - Рядом строится комплекс винный город - Арендатор Сдек - Центральные коммуникации - Отопление, от газового котла - Сплит система - Электричество 15 кВт - С/у, душ в помещение - Вход с улицы - Есть вход из подъезда - Можно переоборудовать под апартаменты, будет пользоваться спросом. От собственника. Без комиссии. По всем вопросам можете обращаться к вашему персональному менеджеру: Александр Логачев - консультант по коммерческой недвижимости. Большая база коммерческой недвижимости. От собственника. Без комиссии . "Агентство регионального развития" Коммерческая недвижимость Геленджика и Новороссийска. От собственника. Без комиссии. Помощь с оформлением ипотеки Подписывайтесь на наш профиль, чтобы узнавать о новых локациях первыми! Добавьте это объявление в "избранное" - чтобы не потерять.
lock

Войдите или зарегистрируйтесь
для просмотра информации

Просматривайте условия сделки и всю информацию об объекте
Сохраняйте фильтры в поиске и не вводите заново
Доступ к избранному с любого устройства
Неограниченное добавление в избранное
Позвоните автору
Вам ответят на все вопросы
Остались вопросы по объявлению?
Позвоните владельцу объявления и уточните необходимую информацию.
  • Инфраструктура
  • Похожие рядом
  • Общая площадь50,5 м²
Помощь надёжных риелторов
Риелтор партнёр Циан поможет купить или продать любую недвижимость
15 000 000 ₽
188 136 $
160 321
Цена за метр
297 030 ₽
Налог
УСН
Агентство недвижимости
Суперагент
На Циан
6 лет
Объектов в работе
более 1000